Ditchling Road, Brighton, BN1

1 bedroom Flat for sale

£210,000

  • 1 bedroom
  • 1 bathroom
  • 1 reception

Key Features

  • Brighton City Centre
  • Private Entrance
  • Patio Garden
  • No Onward Chain
  • Extended Lease

Description

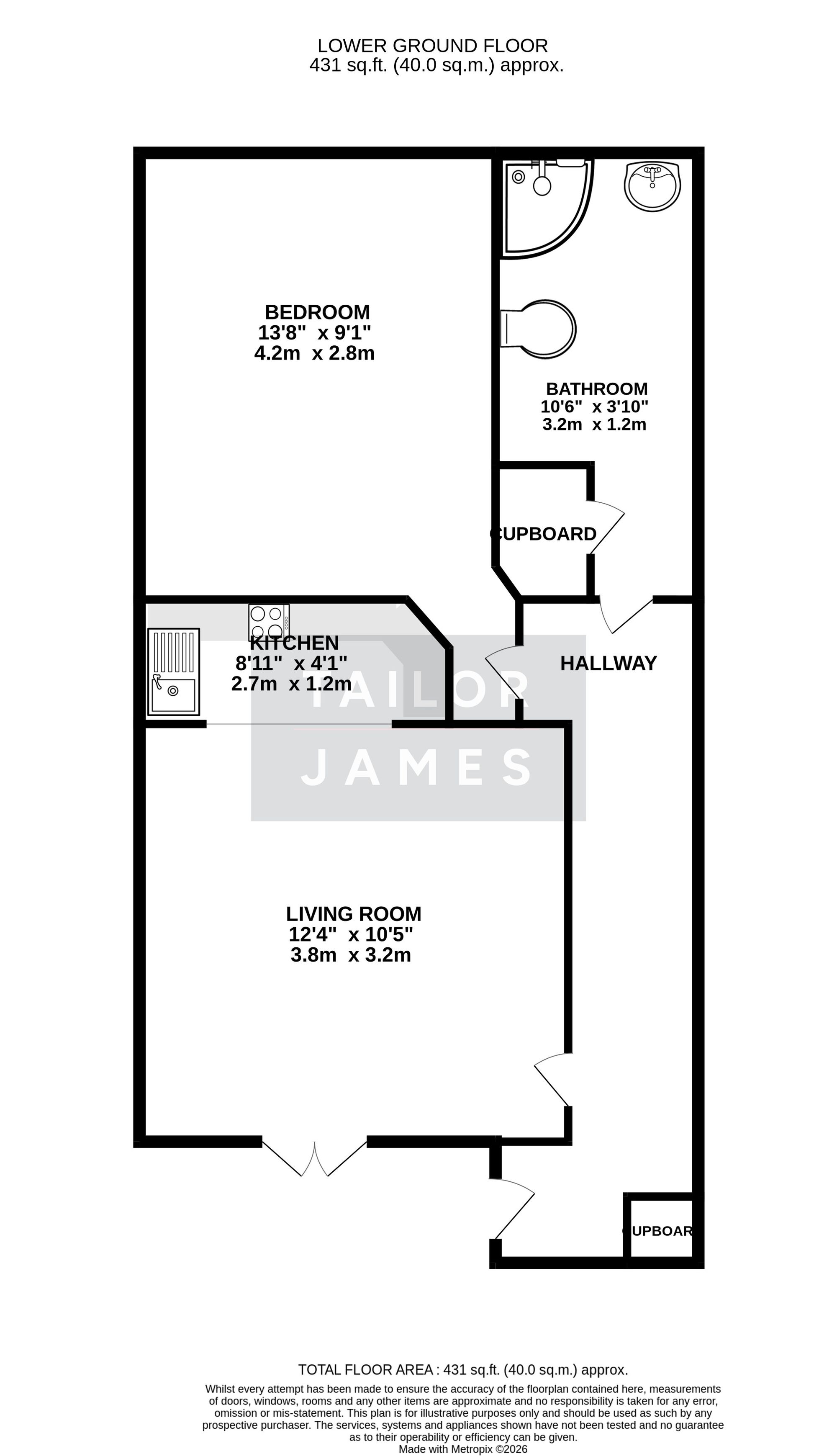
This attractive one-bedroom apartment benefits from its own private entrance, offering a rare sense of independence and privacy. The property features a bright and spacious living room with elegant French doors opening directly onto a private west-facing patio garden, ideal for outdoor dining, and relaxation. This apartment is sold with no onward chain.

The open-plan kitchen flows seamlessly into the living area, creating a modern and sociable space well suited to both everyday living and entertaining. The apartment is thoughtfully laid out, with all rooms accessed from a central hallway, enhancing both privacy and practicality. The bedroom is well proportioned, while the bathroom is neatly appointed, completing this well-balanced home.

The apartment is centrally located on the corner of Ditchling Road and Oxford Street, providing excellent public transport links by both bus and train, with Brighton Mainline Station approximately 0.3 miles away, making it ideal for commuters. Situated directly opposite the green open spaces of The Level, the property also benefits from being a short walk to the seafront, which is just under one mile away.

A significant advantage of the property is that the lease is being extended by the owner as part of the sale, providing added peace of mind and long-term value for the incoming buyer.

This property would make an excellent first-time purchase, investment opportunity, or pied-à-terre, combining private outdoor space with a convenient and well-designed interior.


Location


Floorplan

Floorplan

EPC

EPC for Ditchling Road, Brighton, BN1

Tailor James Estate Agent

229 Queens Park Road, Brighton, BN2 9ZA